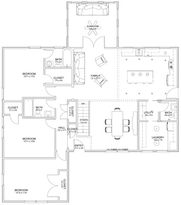
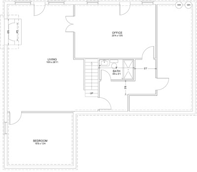
FINALLY! We’ve decided what the floor plan is going to be. We decided to go ahead and make a true master bedroom and add a second full bath to the main floor. You can click on any of the images below to see it a little big bigger.
I think we’ll be happy with all aspects of the new floor plan. We’ve put a LOT (probably entirely too much) thought into it. Hey…I’m the queen of doing that! Some would call it wasting time…I call it over analyzing everything 🙂 I’m still waiting on about 4 more quotes for cabinets and then I’ll narrow it down! I should have 2 of them tomorrow…and hopefully all of them by Wednesday! That’s our next big decision…then it’s on to the HVAC. Exciting, lol!!




Recent Comments